
![]() |
![]() |
Click images to the left to see schematic drawings of the house-shaped scrim, opening in a new tab. | |||||
| Technical specifications for "Carousel" projections and staging
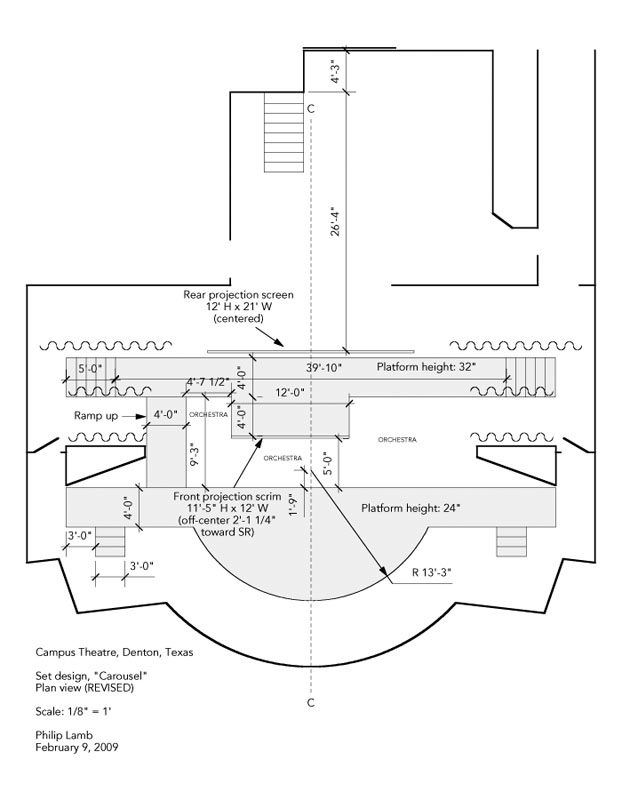
The proscenium of the theatre for which this design was prepared is approximately 34 feet wide and 16 feet high. The platforms designed for the show ranged in height from 24 inches to 34 inches. The front-projection house-shaped scrim structure is constructed of 2-inch square, 1/8th-inch thick aluminum channel. It is assembled from six sections, each no longer than 8 feet. The sections are attached with 3/8-inch thick steel bars, which have holes corresponding to the aluminum sections. Countersunk bolts with washers and nuts hold the structure together. The bottom connecting steel bars extend from the bottom of the structure to attach to the front of the platform. After the structure is assembled, the scrim material -- which is edged with grommets spaced at one foot -- is stretched over the structure and laced onto it, using holes spaced at one foot drilled into the edge of the structure. Once the scrim is assembled, it is attached to the platform using the bottom bars. It is held taut with airplane cable stretched from the peak of the scrim to a rail above the stage. The 11-foot by 21-foot rear-projection screen (not included in this rental package) was from an audio-visual rental company. It was a free-standing aluminum folding structure with the rear-projection surface stretched over it, attached with snaps. You can expect the retail rental cost to be around $500 per day. The video projectors (also not included in this rental package) were high-end Barco projectors, capable of projecting a large, bright image. The retail rental cost for equivalent projectors can be as much as $2,000 a day. The video files were created with Adobe After Effects. The two videos (one for the front projection, and one for the rear projection) were paired side-by-side into one very wide video file, to be split during playback (see details below). They were rendered as Quicktime movies and compressed. The videos and some still images were then assembled into a Keynote file (Keynote is Apple's equivalent to Microsoft's PowerPoint). On site, the Keynote file was played back from a Macintosh MacPro computer, which had 8 processors and 4 GB of RAM. The signal coming out of the MacPro was split into the two discreet screens (front-projection scrim and rear-projection screen) by an external box called a Matrox DualHead2Go. The two signals were sent via cabling to the video projectors. The Keynote files will be provided with this rental, as well as any original elements needed for the client to edit sections for length or to alter cue points. Mr. Lamb is also available to perform these edits at an hourly or day rate fee. The simpler, one-screen version requires only one projector, a computer, and a 11-foot by 21-foot rear-projection screen. Click on the images below to see more schematic drawings of the stage, opening in a new tab. |
|||||||
![]() |
![]() |
||||||
| BACK TO “CAROUSEL” MAIN PAGE | |||||||